Floor Plans

Our Floor Plans

Explore our collection of innovative container home designs, tailored for functionality, efficiency, and modern living. Whether you’re looking for a compact personal space or multi-room accommodations, these layouts make the most of every square foot.

 

Floor Plans

1 bed 1 bath with washer dryer

A compact yet highly functional layout featuring one bedroom, a full bathroom, and in-unit washer and dryer. This design is ideal for individuals or couples who value convenience and self-sufficiency in a modern, space-saving home.

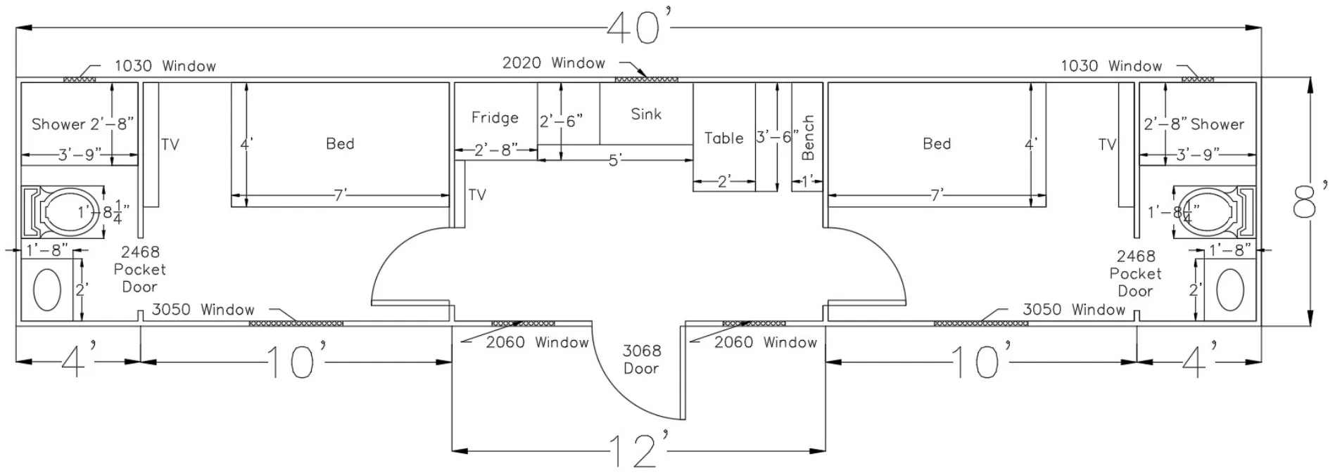
2 bed 2 Bath

Enjoy added comfort and privacy with this spacious layout featuring two bedrooms and two full bathrooms. Perfect for roommates or families, this design provides individual space while maintaining a cohesive and functional living environment.

2 Bed · 1 Bath with Kitchen

Designed for small families or shared living, this floor plan includes two bedrooms, a full bathroom, and a complete kitchen. The layout is optimized for comfort and flexibility, offering private rooms and a shared central space for cooking and relaxing.

Bunkhouse

Designed to maximize sleeping capacity, the Bunkhouse layout is ideal for group accommodations, work crews, or temporary housing needs. With multiple bunk-style beds and a practical layout, it balances comfort with efficient use of space.

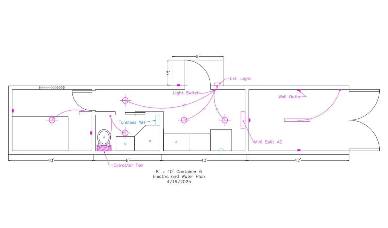
Container 6-8' x 40'

This flexible design utilizes a standard 40-foot container with a width of 6 to 8 feet, making it a versatile base for custom living spaces. Whether configured as a studio, office, or compact home, this layout offers endless possibilities for tailored functionality.

Copyright © 2026. All Rights Reserved | Privacy Policy | Sitemap